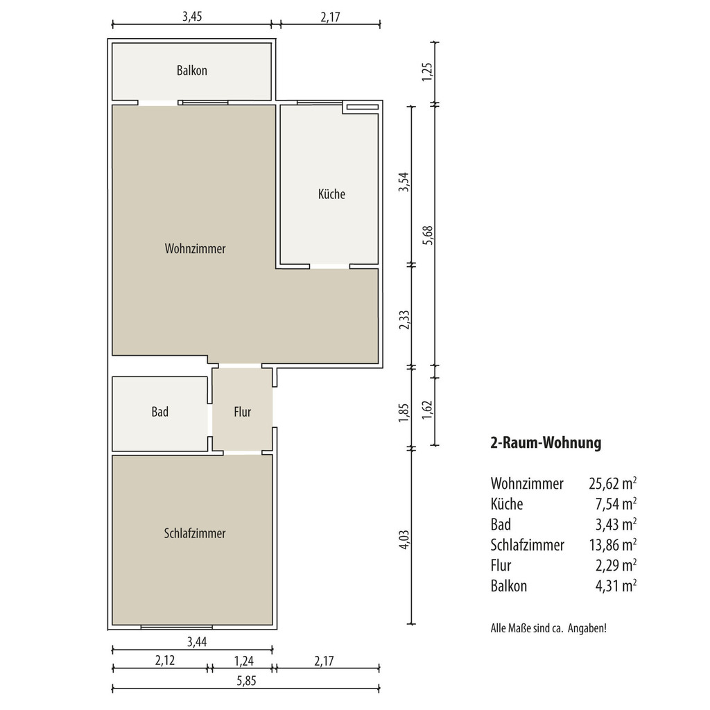
2-Raum-Wohnung mit geräumiger Küche, Balkon und Aufzug
Lage:
Dieses Wohngebiet entstand in den 70er u. 80er Jahren im Süden der Stadt Gera. Die Verkehrsanbindung ist optimal und die infrastrukturelle Ausstattung (Schulen, Kindergärten, med. Versorgung, Einkaufsmöglichkeiten, Dienstleistungen) sehr gut. Es gibt viele Spielplätze.
Wohnplus
• mehrere Einkaufsmärkte (z.B. Kau¬and, Rewe, Aldi, Edeka und dm-Drogeriemarkt) Filiale der Volksbank eG und der Sparkasse Gera-Greiz, Aral Tankstelle, Restaurants
• Apotheken und Arztpraxen; Seniorenheim „Kurt Neubert”, Kath. Seniorenheim „Edith Stein”; Tierklinik
• Kitas: „Perlboot“, „Kinderland”, „Sonnenkäfer”, „Sonnenblume”, „Traumwelt” und Freier Waldorfkindergarten; Grundschulen „Erich Kästner” und „Wilhelm Busch”; Freie Waldorfschule Gera, Integrierte Gesamtschule, 4. Regelschule; Schullandheim
• Sportplatz Brüte, Kindervereinigung Bummerang, Stadtteilbüro Lusan,
• Kath. Kirche, ev. Kirche St. Ursula
• südwestlich der B 92, Buslinie 13 + 15 und Stadtbahnlinie 2 + 3
Ausstattung:
Diese gemütliche 2-Raum-Wohnung steht zur Besichtigung bereit! Das Bad ist mit einer Badewanne ausgestattet. Vom hellen Wohnzimmer aus gelangen Sie in die schöne Küche mit Fenster und auf den großen Balkon. Die gesamte Wohnung wird mit einem hochwertigen Vinyl-Design-Belag ausgestattet.
Unsere Mitarbeiterin Frau Schwendel steht Ihnen zur Vereinbarung eines Besichtigungstermins gern zur Verfügung.
Energiepass
Art: Verbrauchsausweis
Gültig bis:
Baujahr: 1983
Heizungsart: Fernwärme
Energiebedarf: 51,00 kWh/(m²*a)
Energieeffizienzklasse: B
Julia Schwendel
Vermietungs- und Mitgliederservice (VMS)
Lusan, Zwötzen
Wir sind für Sie da – Sie erreichen uns zu den folgenden Zeiten
Unser Team steht Ihnen gerne zur Verfügung und beantwortet alle Ihre Fragen rund um die WBG „Glück Auf“ Gera eG. Besuchen Sie uns zu unseren Öffnungszeiten oder kontaktieren Sie uns telefonisch. Wir freuen uns darauf, Ihnen weiterhelfen zu können.
Geschäftsstelle
WBG „Glück Auf“ Gera eG
Berliner Straße 5
07545 Gera
Öffnungszeiten
Dienstag 9 – 18 Uhr
Donnerstag 9 – 16 Uhr
Telefonische Sprechzeiten
Montag, Mittwoch, Donnerstag 9 – 16 Uhr
Dienstag 9 – 18 Uhr
Freitag 9 – 12 Uhr
Wohnung der Woche
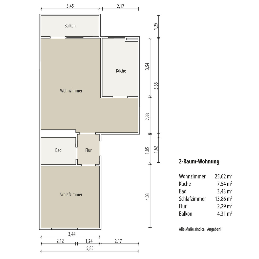
2-Raum-Wohnung mit geräumiger Küche, Balkon und Aufzug
Lage:
Dieses Wohngebiet entstand in den 70er u. 80er Jahren im Süden der Stadt Gera. Die Verkehrsanbindung ist optimal und die infrastrukturelle Ausstattung (Schulen, Kindergärten, med. Versorgung, Einkaufsmöglichkeiten, Dienstleistungen) sehr gut. Es gibt viele Spielplätze.
Wohnplus
• mehrere Einkaufsmärkte (z.B. Kau¬and, Rewe, Aldi, Edeka und dm-Drogeriemarkt) Filiale der Volksbank eG und der Sparkasse Gera-Greiz, Aral Tankstelle, Restaurants
• Apotheken und Arztpraxen; Seniorenheim „Kurt Neubert”, Kath. Seniorenheim „Edith Stein”; Tierklinik
• Kitas: „Perlboot“, „Kinderland”, „Sonnenkäfer”, „Sonnenblume”, „Traumwelt” und Freier Waldorfkindergarten; Grundschulen „Erich Kästner” und „Wilhelm Busch”; Freie Waldorfschule Gera, Integrierte Gesamtschule, 4. Regelschule; Schullandheim
• Sportplatz Brüte, Kindervereinigung Bummerang, Stadtteilbüro Lusan,
• Kath. Kirche, ev. Kirche St. Ursula
• südwestlich der B 92, Buslinie 13 + 15 und Stadtbahnlinie 2 + 3
Ausstattung:
Diese gemütliche 2-Raum-Wohnung steht zur Besichtigung bereit! Das Bad ist mit einer Badewanne ausgestattet. Vom hellen Wohnzimmer aus gelangen Sie in die schöne Küche mit Fenster und auf den großen Balkon. Die gesamte Wohnung wird mit einem hochwertigen Vinyl-Design-Belag ausgestattet.
Unsere Mitarbeiterin Frau Schwendel steht Ihnen zur Vereinbarung eines Besichtigungstermins gern zur Verfügung.
Energiepass
Art: Verbrauchsausweis
Gültig bis:
Baujahr: 1983
Heizungsart: Fernwärme
Energiebedarf: 51,00 kWh/(m²*a)
Energieeffizienzklasse: B
Julia Schwendel
Vermietungs- und Mitgliederservice (VMS)
Lusan, Zwötzen
Rund um die „Glück Auf”
Havariedienst
Wenn in Ihrer Wohnung ein Reparaturbedarf besteht, informieren Sie uns schnell und unkompliziert.
Das „Glück Auf“-Magazin
Spannende Neuigkeiten und Informationen rund um unsere Genossenschaft und das Leben in Gera.
Genossenschaftsmitglied
Entdecken Sie die Vorteile und werden Sie Teil unserer großen „Glück Auf”-Familie.







