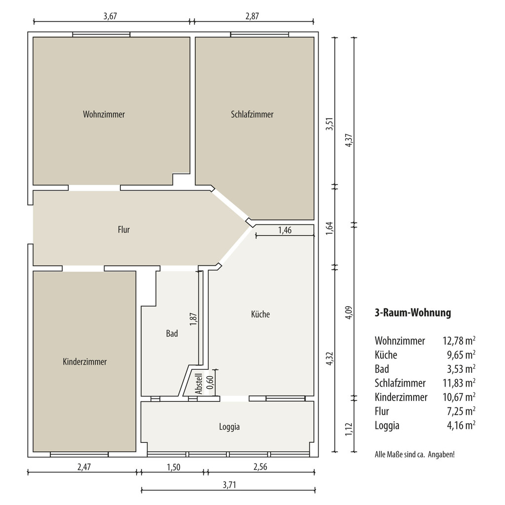
3-Raum-Wohnung im Geraer Ostviertel mit Balkon und Dusche
Lage:
Charakteristisch für viele Häuser in Gera-Ost und auf dem sogenannten Galgenberg ist die vom Bauhausstil geprägte Architektur der 20er und 30er Jahre. Die Gebäudeensemble stehen heute zum Teil unter Denkmalschutz. Die Häuser der „Glück Auf” befinden sich auf großen Grundstücken. Für eine gute Wohnlage sorgen die vielen Gärten, die angrenzende Bebauung mit vielen Einfamilienhäusern und der Weitblick über Gera.
Wohnplus
• Einkaufszentrum Dornaer Straße
• Tierarzt und Physiotherapie in ehemaliger GWG-Geschäftsstelle
• Kita „Am Schreberweg” und Osterlandgymnasium
• Buslinien 10 + 17, gute Verkehrsanbindung an den Stadtring sowie die Bundesstraße
2 + 92
Ausstattung:
Diese individuelle 3-Raum-Wohnung mit großer Wohnküche wurde für Sie saniert!
Das Bad ist mit einer bodengleiche Dusche ausgestattet. Alle Räume sind mit neuen Innentüren sowie einen hochwertigen Vinyl-Design-Fußbodenbelag ausgestattet.
Vereinbaren Sie bereits jetzt einen Besichtigungstermin mit uns!
Energiepass
Art: Verbrauchsausweis
Gültig bis: 01-2029
Baujahr: 1929
Heizungsart: Gas
Energiebedarf: 122,00 kWh/(m²*a)
Energieeffizienzklasse: D
Maria Staps
Vermietungs- und Mitgliederservice (VMS)
Bieblach/Tinz, Gera-Ost
Wir sind für Sie da – Sie erreichen uns zu den folgenden Zeiten
Unser Team steht Ihnen gerne zur Verfügung und beantwortet alle Ihre Fragen rund um die WBG „Glück Auf“ Gera eG. Besuchen Sie uns zu unseren Öffnungszeiten oder kontaktieren Sie uns telefonisch. Wir freuen uns darauf, Ihnen weiterhelfen zu können.
Geschäftsstelle
WBG „Glück Auf“ Gera eG
Berliner Straße 5
07545 Gera
Öffnungszeiten
Dienstag 9 – 18 Uhr
Donnerstag 9 – 16 Uhr
Telefonische Sprechzeiten
Montag, Mittwoch, Donnerstag 9 – 16 Uhr
Dienstag 9 – 18 Uhr
Freitag 9 – 12 Uhr
Rund um die „Glück Auf”
Havariedienst
Wenn in Ihrer Wohnung ein Reparaturbedarf besteht, informieren Sie uns schnell und unkompliziert.
Das „Glück Auf“-Magazin
Spannende Neuigkeiten und Informationen rund um unsere Genossenschaft und das Leben in Gera.
Genossenschaftsmitglied
Entdecken Sie die Vorteile und werden Sie Teil unserer großen „Glück Auf”-Familie.








