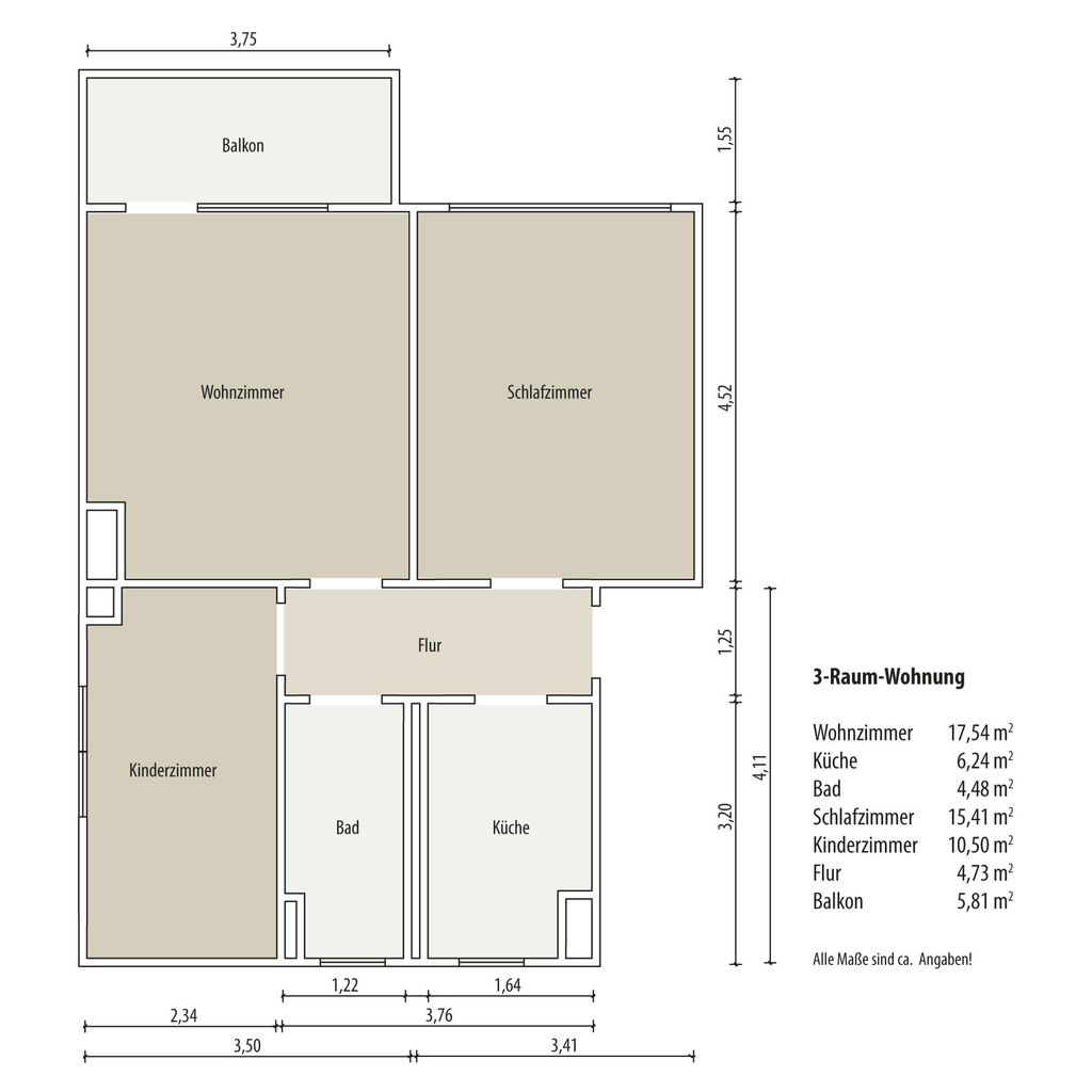
3-Raum-Wohnung mit Balkon, Badewanne und tollem Ausblick
Lage:
Wer es nicht ganz so zentral liebt und trotzdem in der Stadtmitte leben möchte, kann dies natürlich bei der „Glück Auf“ tun: sowohl grünes Wohnumfeld als auch unmittelbare Nähe zu öffentlichen Verkehrsmitteln werden garantiert.
STANDORTPLUS: Netto-Einkaufsmarkt direkt am Wohngebiet; 200 Meter zum Einkaufszentrum in der Dornaer Straße (REWE, ALDI, KIK, dm-Drogeriemarkt, Blumenladen, Friseur, Restaurant 'Knossos',...); Bushaltestelle Linie 10 und 17 direkt am Wohngebiet; Integrative Kindertagesstätte 'Kinderglück' im Wohngebiet; Physiotherapie Kerstin Schirmer, Eiscafé und Bistro 'Rendezvous' und Bäckerei Räke in unmittelbarer Nähe; gute Verkehrsanbindung zur A4, den Bundesstraßen B2 und B92 sowie zum Stadtring Süd-Ost.
Ausstattung:
Hier wird für Sie saniert! Diese gemütliche 3-Raum-Wohnung wird mit neuen Innentüren und einem hochwertigen Vinyl-Design-Belag ausgestattet. Im Tageslichtbad wird eine neue Badewanne sowie moderne großformatige Fliesen eingebaut. Vom Wohnzimmer aus gelangen Sie auf den geräumigen Balkon mit Blick ins Grüne.
Vereinbaren Sie bereits jetzt einen Besichtigungstermin mit uns!
Energiepass
Art: Verbrauchsausweis
Gültig bis: 01-2029
Baujahr: 1961
Heizungsart: Gas
Energiebedarf: 74,00 kWh/(m²*a)
Energieeffizienzklasse: B
Tristan Rast
Vermietungs- und Mitgliederservice (VMS)
Zentrum, Debschwitz
Wir sind für Sie da – Sie erreichen uns zu den folgenden Zeiten
Unser Team steht Ihnen gerne zur Verfügung und beantwortet alle Ihre Fragen rund um die WBG „Glück Auf“ Gera eG. Besuchen Sie uns zu unseren Öffnungszeiten oder kontaktieren Sie uns telefonisch. Wir freuen uns darauf, Ihnen weiterhelfen zu können.
Geschäftsstelle
WBG „Glück Auf“ Gera eG
Berliner Straße 5
07545 Gera
Öffnungszeiten
Dienstag 9 – 18 Uhr
Donnerstag 9 – 16 Uhr
Telefonische Sprechzeiten
Montag, Mittwoch, Donnerstag 9 – 16 Uhr
Dienstag 9 – 18 Uhr
Freitag 9 – 12 Uhr
Rund um die „Glück Auf”
Havariedienst
Wenn in Ihrer Wohnung ein Reparaturbedarf besteht, informieren Sie uns schnell und unkompliziert.
Das „Glück Auf“-Magazin
Spannende Neuigkeiten und Informationen rund um unsere Genossenschaft und das Leben in Gera.
Genossenschaftsmitglied
Entdecken Sie die Vorteile und werden Sie Teil unserer großen „Glück Auf”-Familie.







