3-Raum-Wohnung mit bodengleicher Dusche und Balkon sucht Nachmieter!
Lage:
Die variantenreiche Wohnbebauung zeigt auf einzigartige Weise die Entwicklung des Wohnungsbaus in der DDR von den 50er bis in die 80er Jahre des vergangenen Jahrhunderts. Das Wohngebiet ist in seiner ursprünglichen Gestaltung nahezu unverändert erhalten geblieben. Seit 1998 steht der Bieblacher Hang als bauliche Gesamtanlage einschließlich aller Park- und Grünflächen unter Denkmalschutz.
Wohnplus
• Einkaufsmärkte (z.B. Rewe, Netto und Lidl); Gaststätte „Grüne Mulde”
• Asklepios MVZ Mitteldeutschland; Apotheken und Arztpraxen;
• Kita „Kinderkiste” und „Sausewind”; Grundschule „Am Bieblacher Hang“; Staatliche Regelschule 12; Staatliche berufsbildende Schule Gesundheit, Soziales und Sozialpädagogik
• südlich der BAB 4, Buslinie 24 und Stadtbahnlinie 3
Ausstattung:
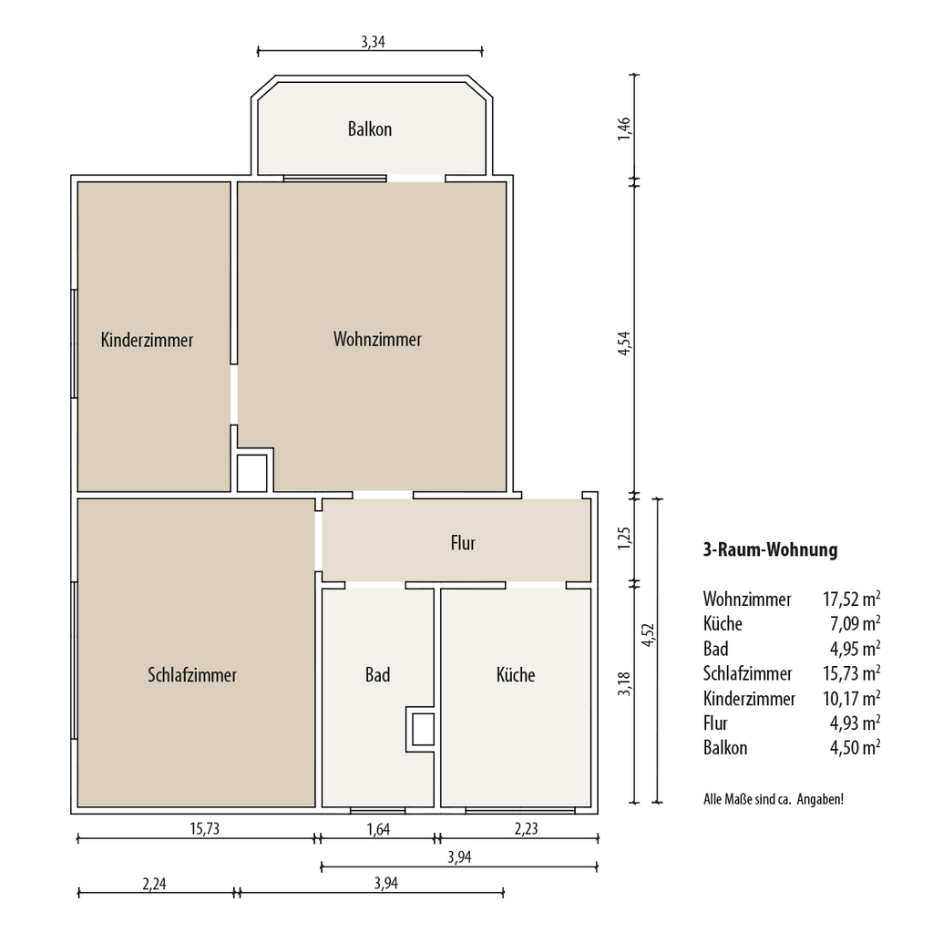
Hier wartet eine sanierte und geräumige 3-Raum-Wohnung auf Sie! Die Wohnung kann mit der jetzigen Mieterin besichtigt werden und ist voraussichtlich ab Februar zur Anmietung bereit. Vom geräumigen Wohnzimmer aus gelangen Sie auf den verglasten Balkon. In den hellen Räumen wurde ein hochwertiger Design-Vinyl-Fußbodenbelag verlegt. Das Tageslichtbad ist mit einer bodengleichen Dusche und großformatigen modernen Fliesen ausgestattet.
Energiepass
Art: Verbrauchsausweis
Gültig bis:
Baujahr: 1962
Heizungsart: Fernwärme
Energiebedarf: 70,30 kWh/(m²*a)
Energieeffizienzklasse: B
Maria Staps
Vermietungs- und Mitgliederservice (VMS)
Bieblach/Tinz, Gera-Ost
Wir sind für Sie da – Sie erreichen uns zu den folgenden Zeiten
Unser Team steht Ihnen gerne zur Verfügung und beantwortet alle Ihre Fragen rund um die WBG „Glück Auf“ Gera eG. Besuchen Sie uns zu unseren Öffnungszeiten oder kontaktieren Sie uns telefonisch. Wir freuen uns darauf, Ihnen weiterhelfen zu können.
Geschäftsstelle
WBG „Glück Auf“ Gera eG
Berliner Straße 5
07545 Gera
Öffnungszeiten
Dienstag 9 – 18 Uhr
Donnerstag 9 – 16 Uhr
Telefonische Sprechzeiten
Montag, Mittwoch, Donnerstag 9 – 16 Uhr
Dienstag 9 – 18 Uhr
Freitag 9 – 12 Uhr
Rund um die „Glück Auf”
Havariedienst
Wenn in Ihrer Wohnung ein Reparaturbedarf besteht, informieren Sie uns schnell und unkompliziert.
Das „Glück Auf“-Magazin
Spannende Neuigkeiten und Informationen rund um unsere Genossenschaft und das Leben in Gera.
Genossenschaftsmitglied
Entdecken Sie die Vorteile und werden Sie Teil unserer großen „Glück Auf”-Familie.










