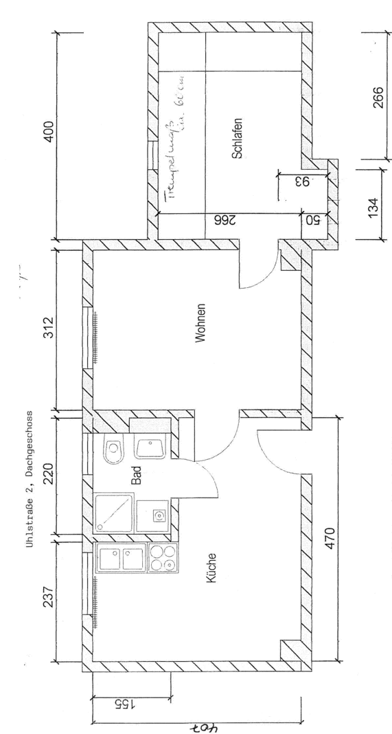
Gemütliche 2-Raum-Wohnung im Altbau mit Dusche
Lage:
Die WBG „Glück Auf“ Gera eG ist Eigentümer der fünfflügeligen Anlage an der Südseite der Uhlstraße. Dreigeschossige Wohnhäuser mit je drei Eingängen sind durch eingeschossige Verbindungstrakte verbunden, in denen sich früher Läden befanden. Die Baukörper unter dem abgewalmten Satteldach erhalten durch klinkerverblendete Sockel, Gesimse, Schlusssteine über Sturzgewänden, in Stein gehauene Tierreliefs über Eingängen (Hase, Eule und Auerhahn) sowie Eckbetonungen durch schmale Klinkerzeilen ein einheitliches Erscheinungsbild. Der straßenseitig letzte Eingang der Häuserzeilen wird durch einen Eckerker markant betont.
Ausstattung:
Diese gemütliche Dachgeschosswohnung im Altbau steht voraussichtlich ab November zur Besichtigung bereit. Das Tageslichtbad ist mit einer Dusche ausgestattet. Die Wohnung ist mit einem PVC-Belag in Laminatoptik ausgestattet.
Vereinbaren Sie bereits jetzt einen Besichtigungstermin mit uns!
Energiepass
Art: Verbrauchsausweis
Gültig bis:
Baujahr: 1929
Heizungsart: Gas
Energiebedarf: 131,00 kWh/(m²*a)
Energieeffizienzklasse: E
Julia Schwendel
Vermietungs- und Mitgliederservice (VMS)
Lusan, Zwötzen
Wir sind für Sie da – Sie erreichen uns zu den folgenden Zeiten
Unser Team steht Ihnen gerne zur Verfügung und beantwortet alle Ihre Fragen rund um die WBG „Glück Auf“ Gera eG. Besuchen Sie uns zu unseren Öffnungszeiten oder kontaktieren Sie uns telefonisch. Wir freuen uns darauf, Ihnen weiterhelfen zu können.
Geschäftsstelle
WBG „Glück Auf“ Gera eG
Berliner Straße 5
07545 Gera
Öffnungszeiten
Dienstag 9 – 18 Uhr
Donnerstag 9 – 16 Uhr
Telefonische Sprechzeiten
Montag, Mittwoch, Donnerstag 9 – 16 Uhr
Dienstag 9 – 18 Uhr
Freitag 9 – 12 Uhr
Rund um die „Glück Auf”
Havariedienst
Wenn in Ihrer Wohnung ein Reparaturbedarf besteht, informieren Sie uns schnell und unkompliziert.
Das „Glück Auf“-Magazin
Spannende Neuigkeiten und Informationen rund um unsere Genossenschaft und das Leben in Gera.
Genossenschaftsmitglied
Entdecken Sie die Vorteile und werden Sie Teil unserer großen „Glück Auf”-Familie.




