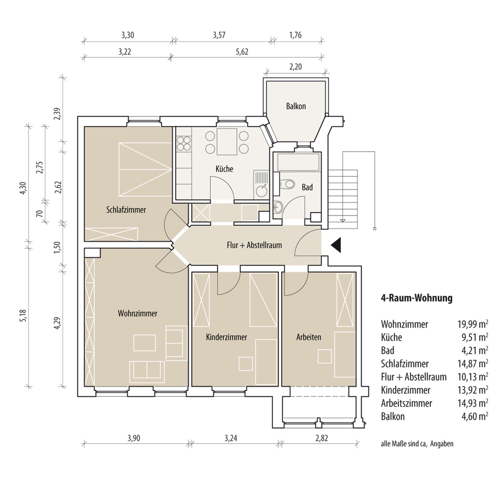
Geräumige 4-Raum-Wohnung mit Balkon im Stadtzentrum Geras
Lage:
Das Wohngebiet Am Sommerbad befindet sich in Geras Stadtmitte. Die Wohngebäude wurden zwischen 1926 und 1938 errichtet. Sie erstrecken sich entlang des Ausläufers des Hofwiesenparks an der Weißen Elster. Der angrenzende Hofwiesenpark bietet neben Erholung auch zahlreiche Freizeitmöglichkeiten - ein Volleyballfeld, ein Minigolfplatz, eine Kinderspielwiese, die Hofwiesenbad-Therme, das Sportstation 'Stadion der Freundschaft' und vieles mehr. Im Juli 2019 eröffnete außerdem der Elster-Strand mit einer Strandbar.
Das Einkaufszentrum Gera-Arcaden sowie viele weitere innerstädtische Einkaufsläden, Bars und Restaurants sind fußläufig in nur wenigen Minuten erreichbar. Das Wohngebiet hat außerdem eine sehr gute Anbindung an die öffentlichen Verkehrsmittel. Eine Haltestelle der Straßenbahnlinie 3 ist ca. 6 Gehminuten entfernt. Auch der Bahnhof Gera Süd ist in ca. 10 Gehminuten erreichbar. Darüber hinaus befinden sich Ärzte, Schulen sowie Kindertagesstätten im näheren Umfeld der Wohngebäude.
Ausstattung:
Diese 4-Raum-Wohnung im Altbau in der Stadtmitte Geras wurde 2022 umfangreich saniert. Alle Räume wurden mit neuen Innentüren und einem hochwertigen Vinyl-Design-Belag ausgestattet. Die Tageslichtbäder besitzen eine Badewanne sowie moderne großformatige Fliesen. Von der Küche aus gelangen Sie auf den Balkon.
Vereinbaren Sie bereits jetzt einen Besichtigungstermin mit uns!
Energiepass
Art: Verbrauchsausweis
Gültig bis:
Baujahr: 1927
Heizungsart: Gas
Energiebedarf: 128,00 kWh/(m²*a)
Energieeffizienzklasse: D
Tristan Rast
Vermietungs- und Mitgliederservice (VMS)
Zentrum, Debschwitz
Wir sind für Sie da – Sie erreichen uns zu den folgenden Zeiten
Unser Team steht Ihnen gerne zur Verfügung und beantwortet alle Ihre Fragen rund um die WBG „Glück Auf“ Gera eG. Besuchen Sie uns zu unseren Öffnungszeiten oder kontaktieren Sie uns telefonisch. Wir freuen uns darauf, Ihnen weiterhelfen zu können.
Geschäftsstelle
WBG „Glück Auf“ Gera eG
Berliner Straße 5
07545 Gera
Öffnungszeiten
Dienstag 9 – 18 Uhr
Donnerstag 9 – 16 Uhr
Telefonische Sprechzeiten
Montag, Mittwoch, Donnerstag 9 – 16 Uhr
Dienstag 9 – 18 Uhr
Freitag 9 – 12 Uhr
Wohnung der Woche
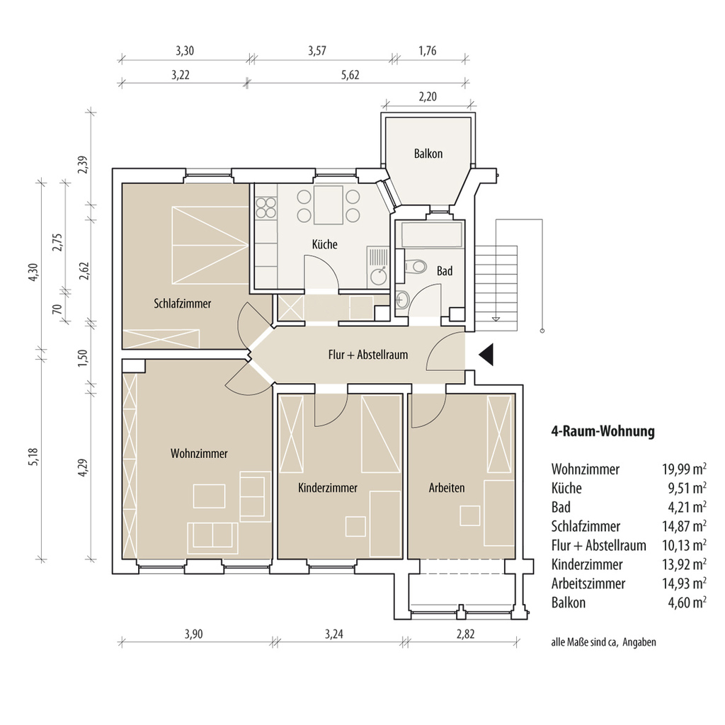
Geräumige 4-Raum-Wohnung mit Balkon im Stadtzentrum Geras
Lage:
Das Wohngebiet Am Sommerbad befindet sich in Geras Stadtmitte. Die Wohngebäude wurden zwischen 1926 und 1938 errichtet. Sie erstrecken sich entlang des Ausläufers des Hofwiesenparks an der Weißen Elster. Der angrenzende Hofwiesenpark bietet neben Erholung auch zahlreiche Freizeitmöglichkeiten - ein Volleyballfeld, ein Minigolfplatz, eine Kinderspielwiese, die Hofwiesenbad-Therme, das Sportstation 'Stadion der Freundschaft' und vieles mehr. Im Juli 2019 eröffnete außerdem der Elster-Strand mit einer Strandbar.
Das Einkaufszentrum Gera-Arcaden sowie viele weitere innerstädtische Einkaufsläden, Bars und Restaurants sind fußläufig in nur wenigen Minuten erreichbar. Das Wohngebiet hat außerdem eine sehr gute Anbindung an die öffentlichen Verkehrsmittel. Eine Haltestelle der Straßenbahnlinie 3 ist ca. 6 Gehminuten entfernt. Auch der Bahnhof Gera Süd ist in ca. 10 Gehminuten erreichbar. Darüber hinaus befinden sich Ärzte, Schulen sowie Kindertagesstätten im näheren Umfeld der Wohngebäude.
Ausstattung:
Diese 4-Raum-Wohnung im Altbau in der Stadtmitte Geras wurde 2022 umfangreich saniert. Alle Räume wurden mit neuen Innentüren und einem hochwertigen Vinyl-Design-Belag ausgestattet. Die Tageslichtbäder besitzen eine Badewanne sowie moderne großformatige Fliesen. Von der Küche aus gelangen Sie auf den Balkon.
Vereinbaren Sie bereits jetzt einen Besichtigungstermin mit uns!
Energiepass
Art: Verbrauchsausweis
Gültig bis:
Baujahr: 1927
Heizungsart: Gas
Energiebedarf: 128,00 kWh/(m²*a)
Energieeffizienzklasse: D
Tristan Rast
Vermietungs- und Mitgliederservice (VMS)
Zentrum, Debschwitz
Rund um die „Glück Auf”
Havariedienst
Wenn in Ihrer Wohnung ein Reparaturbedarf besteht, informieren Sie uns schnell und unkompliziert.
Das „Glück Auf“-Magazin
Spannende Neuigkeiten und Informationen rund um unsere Genossenschaft und das Leben in Gera.
Genossenschaftsmitglied
Entdecken Sie die Vorteile und werden Sie Teil unserer großen „Glück Auf”-Familie.









