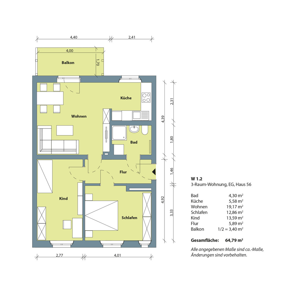
Sanierte 3-Raum-Wohnung im Altbau mit Dusche und Balkon
Lage:
Architektonisch und auch durch die neu gestalteten Außenanlagen entsteht ein modernes und attraktives Wohnensemble. Hervorragend sind die Lage und die Einbindung in den umgebenden öffentlichen Raum. Alle wichtigen infrastrukturellen Angebote werden vereint mit der Nähe zur Natur und dem Wohnen im Grünen.
Wohnplus
• Einkaufszentrum Dornaer Straße
• Physiotherapie in ehemaliger GWG-Geschäftsstelle
• Kita „Am Schreberweg” und Osterlandgymnasium
• Buslinien 10 + 17, gute Verkehrsanbindung an den Stadtring sowie die Bundesstraße 2 + 92
Ausstattung:
Wohnen im Denkmal – wir sanieren einen wunderschönen Altbau für Sie!
Diese 3-Raum-Wohnung entsteht im Erdgeschoss des Wohnhauses. Im modernem Badezimmer werden eine bodengleichen Dusche und moderne großformatige Fliesen eingebaut. Vom offen gestalteten Wohn- und Kochbereich gelangen Sie auf den großen Balkon. Alle Räume werden mit einem hochwertigen Vinyl-Design-Fußbodenbelag ausgestattet. Die historische Wohnungseingangstür wird aufgearbeitet. Genügend Stauraum finden Sie außerdem in Ihrem eigenen Keller- und Dachbodenabteil.
Die Wohnung ist im 4. Quartal 2026 bezugsfertig.
Haben wir Ihr Interesse geweckt? Wir beraten Sie gern!
Energiepass
Art:
Gültig bis:
Baujahr: 1929
Heizungsart:
Energiebedarf: 0,00 kWh/(m²*a)
Energieeffizienzklasse:
Maria Staps
Vermietungs- und Mitgliederservice (VMS)
Bieblach/Tinz, Gera-Ost
Wir sind für Sie da – Sie erreichen uns zu den folgenden Zeiten
Unser Team steht Ihnen gerne zur Verfügung und beantwortet alle Ihre Fragen rund um die WBG „Glück Auf“ Gera eG. Besuchen Sie uns zu unseren Öffnungszeiten oder kontaktieren Sie uns telefonisch. Wir freuen uns darauf, Ihnen weiterhelfen zu können.
Geschäftsstelle
WBG „Glück Auf“ Gera eG
Berliner Straße 5
07545 Gera
Öffnungszeiten
Dienstag 9 – 18 Uhr
Donnerstag 9 – 16 Uhr
Telefonische Sprechzeiten
Montag, Mittwoch, Donnerstag 9 – 16 Uhr
Dienstag 9 – 18 Uhr
Freitag 9 – 12 Uhr
Rund um die „Glück Auf”
Havariedienst
Wenn in Ihrer Wohnung ein Reparaturbedarf besteht, informieren Sie uns schnell und unkompliziert.
Das „Glück Auf“-Magazin
Spannende Neuigkeiten und Informationen rund um unsere Genossenschaft und das Leben in Gera.
Genossenschaftsmitglied
Entdecken Sie die Vorteile und werden Sie Teil unserer großen „Glück Auf”-Familie.


