Tolle 2-Raum-Wohnung mit bodengleicher Dusche + großem Balkon
Lage:
Charakteristisch für viele Häuser in Gera-Ost und auf dem sogenannten Galgenberg ist die vom Bauhausstil geprägte Architektur der 20er und 30er Jahre. Die Gebäudeensemble stehen heute zum Teil unter Denkmalschutz. Die Häuser der „Glück Auf” befinden sich auf großen Grundstücken. Für eine gute Wohnlage sorgen die vielen Gärten, die angrenzende Bebauung mit vielen Einfamilienhäusern und der Weitblick über Gera.
Wohnplus
• Einkaufszentrum Dornaer Straße
• Physiotherapie in ehemaliger GWG-Geschäftsstelle
• Kita „Am Schreberweg” und Osterlandgymnasium
• Hotel „Am Galgenberg”
• Buslinien 10 + 17, gute Verkehrsanbindung an den Stadtring sowie die Bundesstraße 2 + 92
Ausstattung:
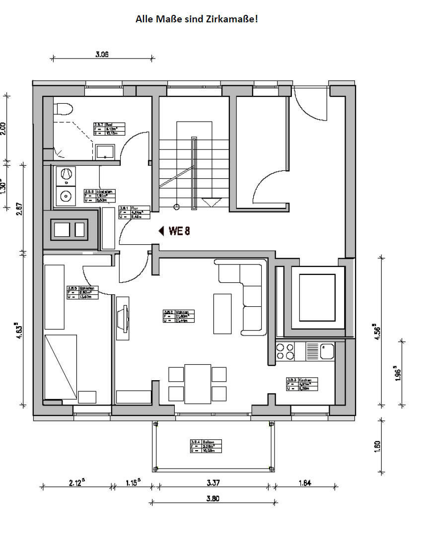
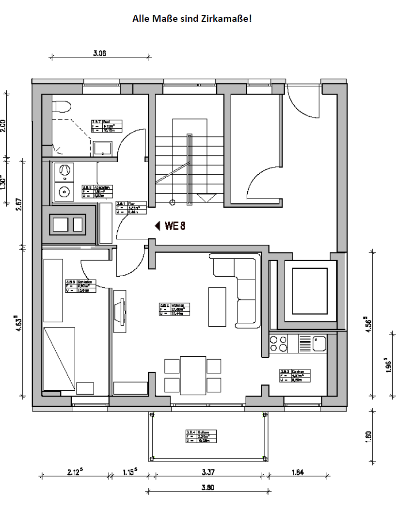
Diese gemütliche 2-Raum-Wohnung steht ab sofort zur Besichtigung bereit und ist barrierefrei über den Aufzug zu erreichen. Das Bad ist mit einer bodengleichen Dusche und modernen großformatigen Fliesen ausgestattet. Vom hellen Wohnzimmer aus gelangen Sie auf den geräumigen Balkon. In allen Räumen wurden neue Innentüren eingebaut und ein hochwertiger Vinyl-Design-Belag verlegt.
Haben wir Ihr Interesse geweckt? Wir beraten Sie gern!
Energiepass
Art: Verbrauchsausweis
Gültig bis:
Baujahr: 1971
Heizungsart: Gas
Energiebedarf: 63,00 kWh/(m²*a)
Energieeffizienzklasse: B
Maria Staps
Vermietungs- und Mitgliederservice (VMS)
Bieblach/Tinz, Gera-Ost
Wir sind für Sie da – Sie erreichen uns zu den folgenden Zeiten
Unser Team steht Ihnen gerne zur Verfügung und beantwortet alle Ihre Fragen rund um die WBG „Glück Auf“ Gera eG. Besuchen Sie uns zu unseren Öffnungszeiten oder kontaktieren Sie uns telefonisch. Wir freuen uns darauf, Ihnen weiterhelfen zu können.
Geschäftsstelle
WBG „Glück Auf“ Gera eG
Berliner Straße 5
07545 Gera
Öffnungszeiten
Dienstag 9 – 18 Uhr
Donnerstag 9 – 16 Uhr
Telefonische Sprechzeiten
Montag, Mittwoch, Donnerstag 9 – 16 Uhr
Dienstag 9 – 18 Uhr
Freitag 9 – 12 Uhr
Rund um die „Glück Auf”
Havariedienst
Wenn in Ihrer Wohnung ein Reparaturbedarf besteht, informieren Sie uns schnell und unkompliziert.
Das „Glück Auf“-Magazin
Spannende Neuigkeiten und Informationen rund um unsere Genossenschaft und das Leben in Gera.
Genossenschaftsmitglied
Entdecken Sie die Vorteile und werden Sie Teil unserer großen „Glück Auf”-Familie.










